Emanuel School (LINC and Life Science)

- Client
- Emanuel School
- Location
- Randwick
Eora Country - Sector
- Education — Primary
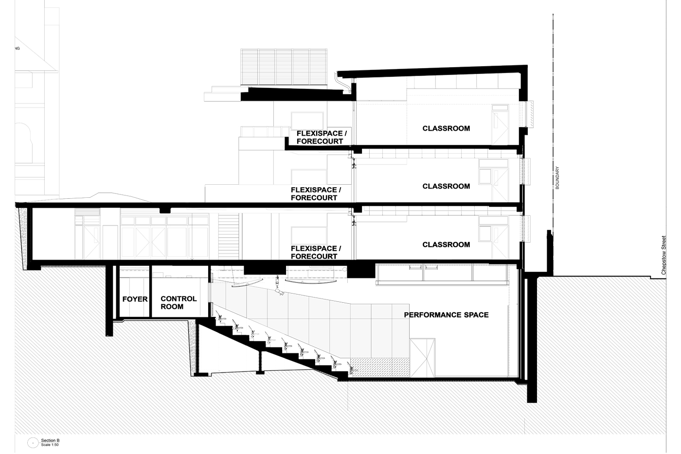
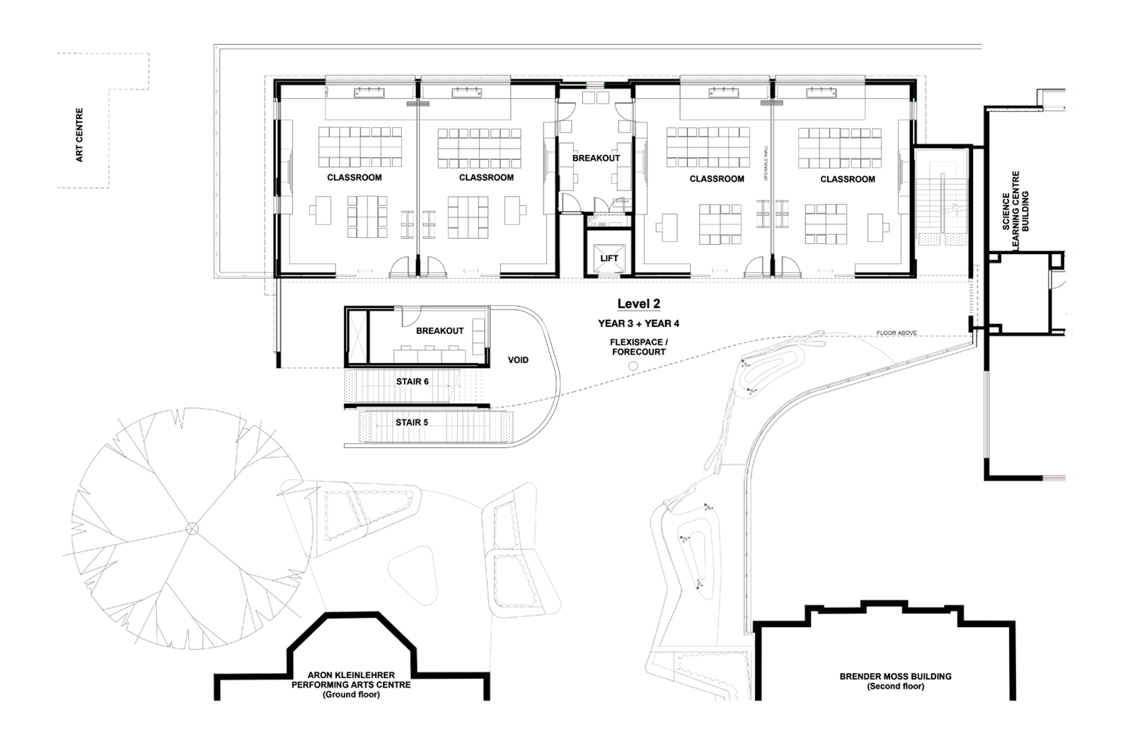
Located on the state heritage-listed site of a former convent, the Emanuel School Campus – which BKA masterplanned in collaboration with the NSW Heritage Office – responds to contemporary flexible and technology-based pedagogies. Flagship features include the Life Science Building, a state-of-the-art science and technology hub, and the LINC (“Lead. Inspire. Nurture. Create.”) Building, which offers teaching spaces, art studios, a gymnasium, and a 300-seat performance theatre.
Both buildings integrate seamlessly into the sloped site and incorporate environmentally sensitive design (ESD) principles that allow natural light and ventilation at all levels.




